
Foster+Partners-Hankook Technoplex
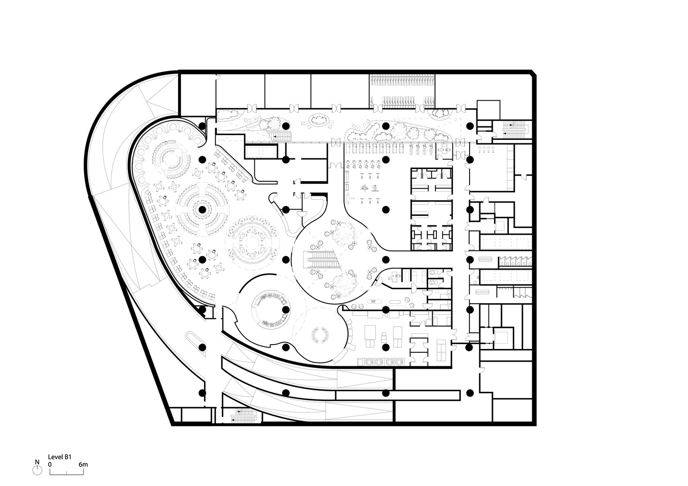
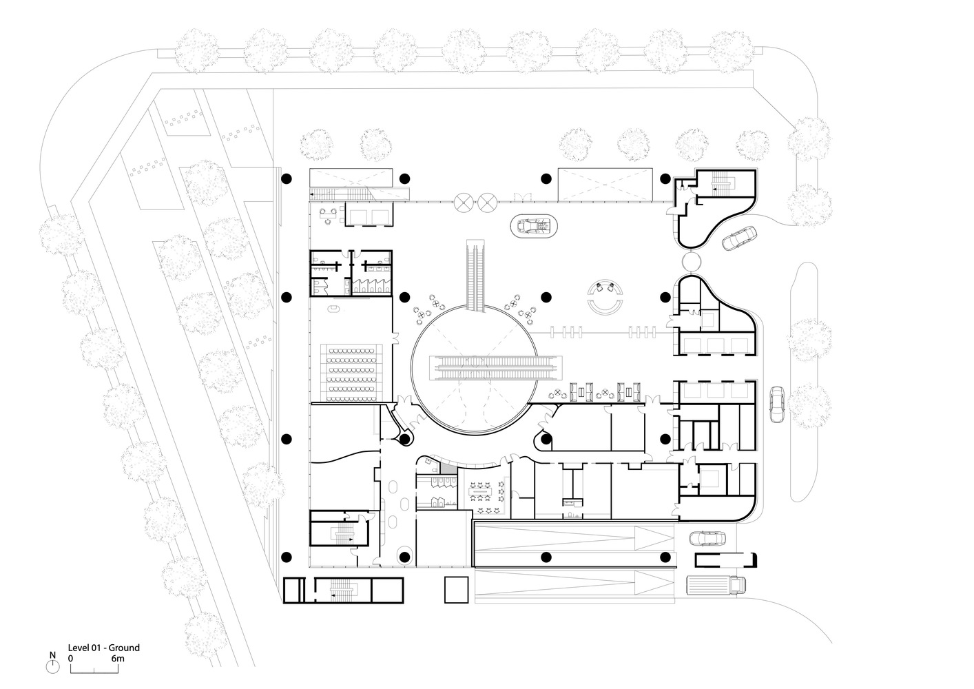
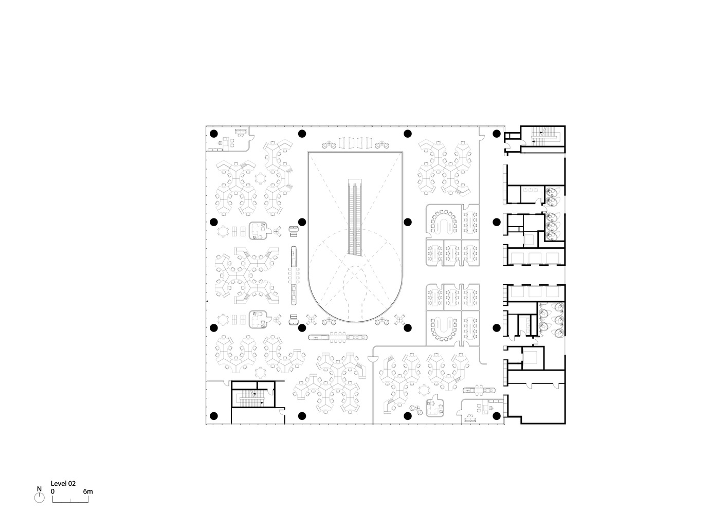
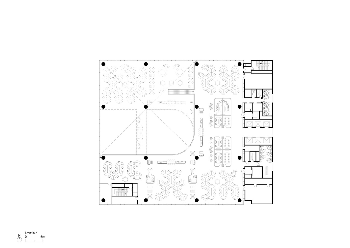
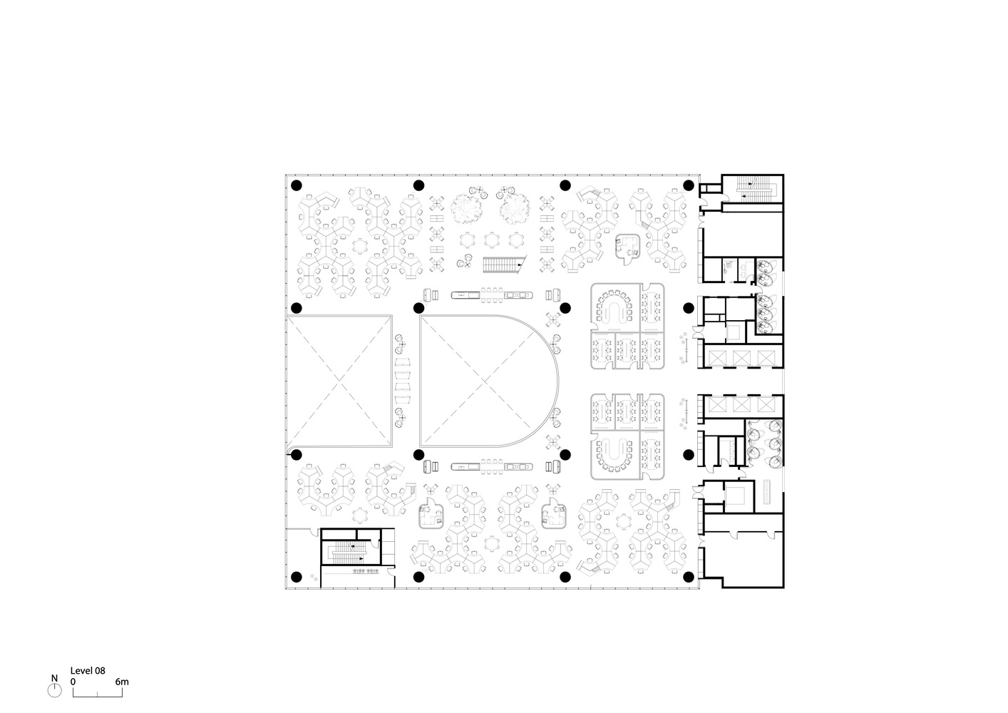
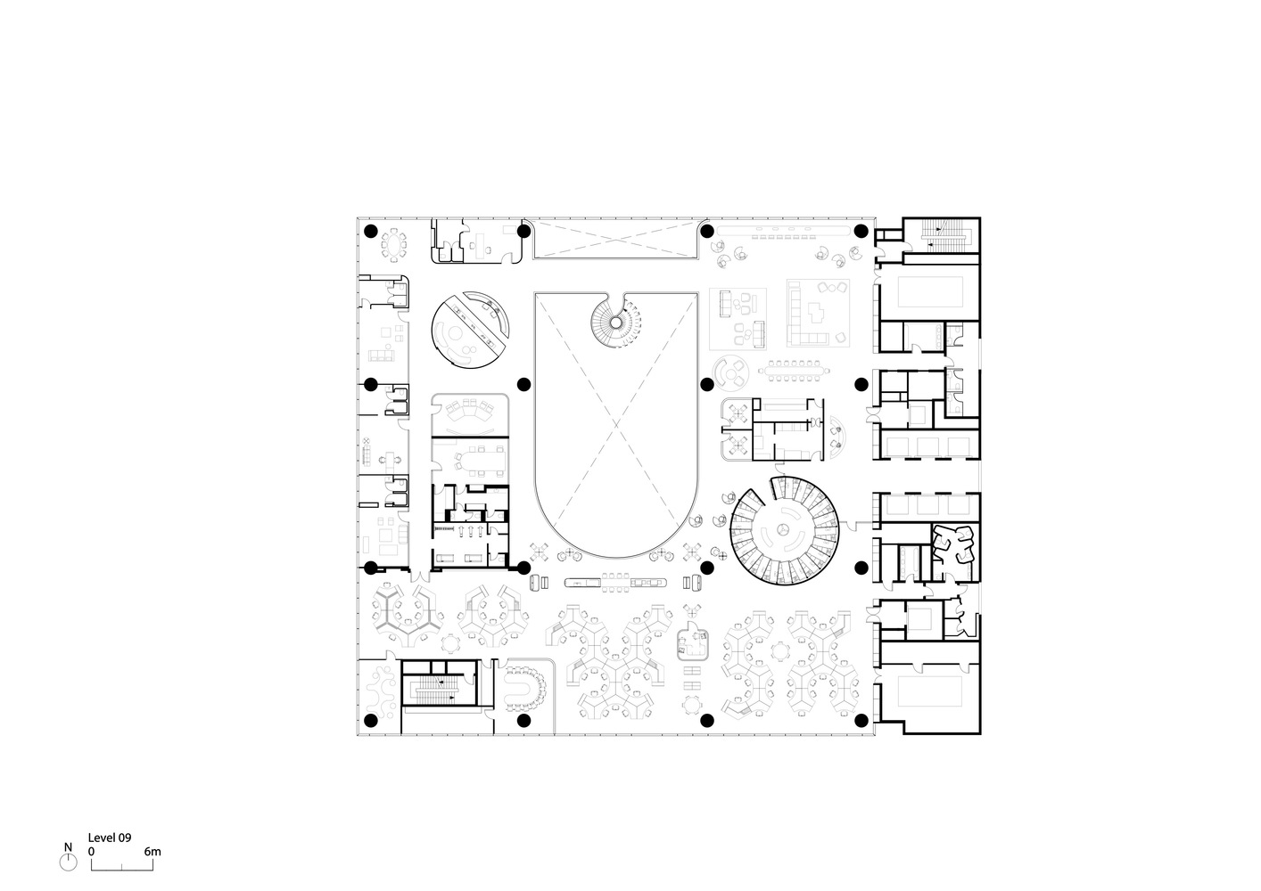
새로운 테크노플렉스는 한국타이어의 글로벌 브랜드로서의 발전을 반영하며 회사가 대표하는 엔지니어링의 우수성을 반영한다. 10층 건물에는 175석 규모의 강당이 있는 최첨단 비즈니스 센터와 함께 한국 본사와 자회사가 있다. 바닥판은 중앙 아트리움을 중심으로 나선형으로 배치되어 건물 전체에 다양한 높이의 공간을 만든다. 동적 볼륨은 직원 상호 작용을 장려하는 동시에 다양한 수준에서 시각적 연겨을 생성하는 동시에 자연광이 건물 중앙으로 깊숙히 들어온다.
아트리움에는 Jason Bruges Studio의 'Digital Phyllotaxy'라는 대규모 예술작품이 설치되어있다. 방문자는 에스컬레이터를 타고 메인 리셉션으로 올라가면서 몰입형 미디어 아트워크를 경험한다. 작품은 나무 캐노피에 대한 시각적 은유를 만들어 건물 내부의 야외 감각을 가져온다.
건물 파사드는 자연광 사용을 최적화하도록 세심하게 설계되었다. 유리 루버는 실내 조명 수준을 조절하기 위해 다양한 수준의 밀도로 건물을 감싸고 있다.
The new Technoplex reflects Hankook’s development as a global brand, echoing the excellence in engineering that the company represents. The ten-storey building houses the Hankook offices and its subsidiaries, alongside a state-of-the-art business centre with a 175-seat auditorium. The floorplates spiral around a central atrium, creating spaces of differing heights throughout the building. The dynamic volume generates visual connections across the different levels encouraging staff interaction, while also letting natural light deep into the heart of the building.
The atrium contains a large site-specific art installation by Jason Bruges Studio called, ‘Digital Phyllotaxy’. Visitors experience the immersive media artwork as they ascend to the main reception via an escalator. The artwork creates a visual metaphor for a tree canopy, bringing a sense of the outdoors inside the building. Travelling up through the spatial artwork, they experience evolving volumes of light, shadow and colour. The reception space includes another triptych media artwork by the same studio called, ‘Dynamic Tread’.
The building façades have been carefully designed to optimise the use of natural light. Glass louvres are wrapped around the building at varying levels of density to moderate the indoor light levels. For instance, the communal and social areas are designed to be brighter and more relaxed, while the workspaces have stricter controls on light levels complemented by an intelligent artificial lighting system. It this way, the façade responds to the activities taking place inside the building,
also giving the building a unique visual identity.
Through its warm material palette, naturally lit spaces, and flexible workspaces, the design creates a positive experience for the company staff. Nature plays a vital role in the success of the workplace; indoor trees define breakout spaces on each level with greenery travelling to the top of the building. Overlooking the central atrium, they are designed for informal meetings and short breaks, while the open-plan workspaces can be configured organically to promote collaboration between different teams. The flexible layouts enable the building to adapt to changing needs over time, incorporating new ways of working as technologies evolve.
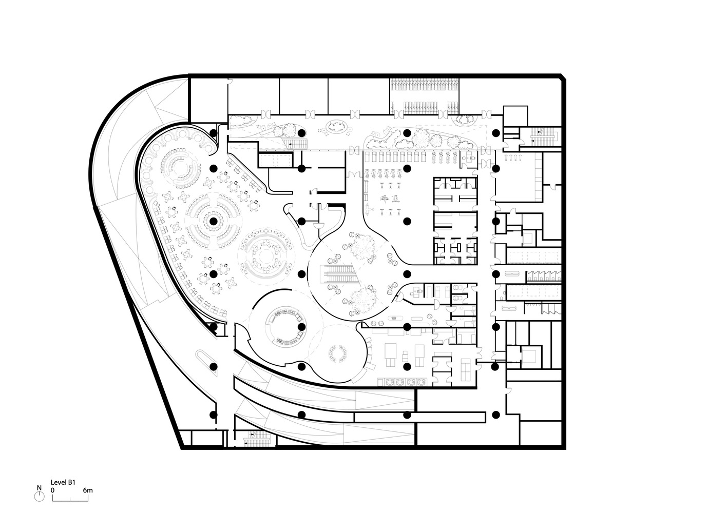
To break down the traditional hierarchical barriers and create a more egalitarian workplace, top-level executives are co-located with their teams on different levels. An executive business lounge on the top floor provides a space for company executives to meet informally, which promotes interaction between the key members and enables a more fluid flow of information within the company. The building is sandwiched by social spaces, with the healthcare facilities, staff restaurant, and gymnasium in the first basement, and a landscaped terrace and a rest area for employees on the roof. The roof garden takes advantage of unobstructed views across the Pangyo area, offering a unique space for company events.
Photography by TIME OF BLUE
















from archdaily
'Office' 카테고리의 다른 글
| -소통하는 계단을 가진 U자형 캠퍼스 건물 [ Nieto Sobejano Arquitectos ] Faculty of Humanities and Communication Sciences (0) | 2022.12.07 |
|---|---|
| -오믹스 연구 센터 [ jaq ] Omics Research Center (0) | 2022.11.27 |
| -이시가키 시청 [ Kengo Kuma & Associates ] Ishigaki City Hall (0) | 2022.11.15 |
| -화이트 오피스 빌딩 [ Liso Architects ] Basics Office Building (0) | 2022.08.09 |
| -구글 베이 뷰 [ BIG+Heatherwick Studio ] Google Bay View (0) | 2022.07.19 |