
Furuya Design Architecture Office-Interval House
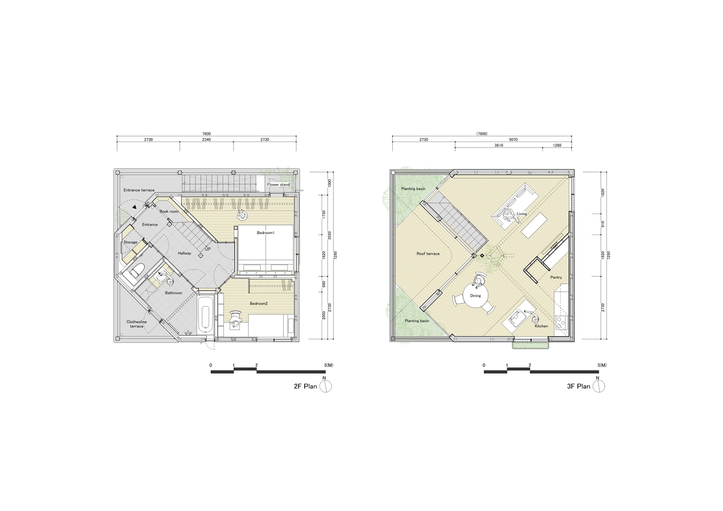
부지 주변에 조경계획을 하여 휴식공간을 구현했다. 이에 반해 상층주거의 경우 부피가 적어 옆집과의 간격이 생기도록 설계했다. 그 틈은 테라스와 연결되어 마치 골목이 3층 공중정원으로 올라가는 듯한 착시를 예상할 수 있도록 하였다. 그리고 틈을 통해 방으로 햇빛을 끌어들였다.
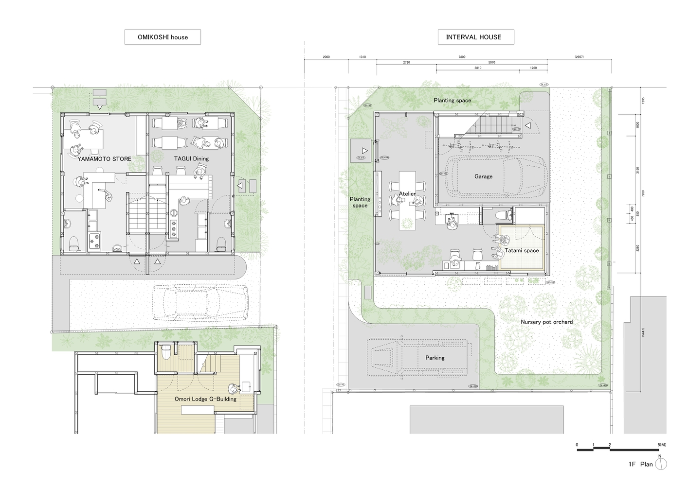
This is a three-story wooden house with the same volume as the two-story terrace-house “Omori Lodge OMIKOSHI HOUSE” with a facing shop. I wanted to merge the concept of a series of alleys into the two architectural forms that made an appeal to the town similar to komainu, a pair of stone guardian dogs at the gate of a Shinto shrine.
It can be likened to architecture like the garden of Omori Lodge. As a result, in the zigzag-like space, a comfortable rest space is made by making contact with the surroundings and connecting points.
The first-floor atelier is also used as a greenhouse for planting, and in the margin of the site, plants are implemented while creating a landscape. By contrast, in the upper floor dwelling, it is designed to create a gap with the next house due to the lack of volume. the gap connects with the terrace of the carrying house, and an illusion as if the alley (garden) rises to the 3rd floor aerial garden can be anticipated. The gap pulls the sunshine into the room, creating a gap in the landscape. The line of flow follows the 45-degree plan and leads to the living space while creating awareness of the outside.
As a result, in the zigzag-like space, a comfortable rest space is created by making contact with the surroundings and connecting points. Spatial distance from the opposing city. Between work and life. Not residing, but resting. With this meaning, this architecture is called an interval house.
Photography by Norihito Yamauchi







from archdaily
'House' 카테고리의 다른 글
| -파리의 집 [ Java Architecture ] Staying in Paris (0) | 2021.11.08 |
|---|---|
| -땅 속의 주택 [ Francisco Pardo Arquitecto ] Aguacates House (0) | 2021.11.03 |
| -친환경 노출콘크리트 하우스 [ Furuya Design Architecture Office ] HANEGI PLUS House (0) | 2021.11.03 |
| -외부와 소통하는 소형 주택 [ Arte-1 Architects ] 6 tsubo-house (0) | 2021.11.02 |
| -프라이버시 하우스 [ poly.m.ur + Hyunju Lim ] My Gumi Residence (0) | 2021.10.30 |